Stav: Probíhající

Serverový čas: 10.10.2025 23:14

Karta veřejné zakázky #211/25
Úprava karuselového obráběcího stroje

Detail zprávy #689198

Datum a čas doručení
23.09.2025 10:54:55
Odesílatel
Dopravní podnik města Brna, a. s.
Příjemce
Všichni
Typ
Vysvětlení zadávací dokumentace
Předmět
Vysvětlení poptávkové dokumentace č. 1

Hezký den,

na základě dotazu jednoho z účastníků poptávkového řízení zasíláme vysvětlení poptávkové dokumentace č. 1 na veřejnou zakázku „Úprava karuselového obráběcího stroje“:


Vznesený dotaz č. 1

V souvislosti s vypracováním cenové nabídky Vás chci požádat o zaslání dokumentace:

1. Elektrické schéma stávajícího stavu karuselu.
2. Výkresy opracování tramvajového kola 610mm a 700mm.
3. PLC projekt pro řízení stroje (pokud existuje).


Odpověď na dotaz č. 1

Ad 1) Zadavatel má k dispozici část dokumentace, kterou poskytuje přílohou tohoto vysvětlení.

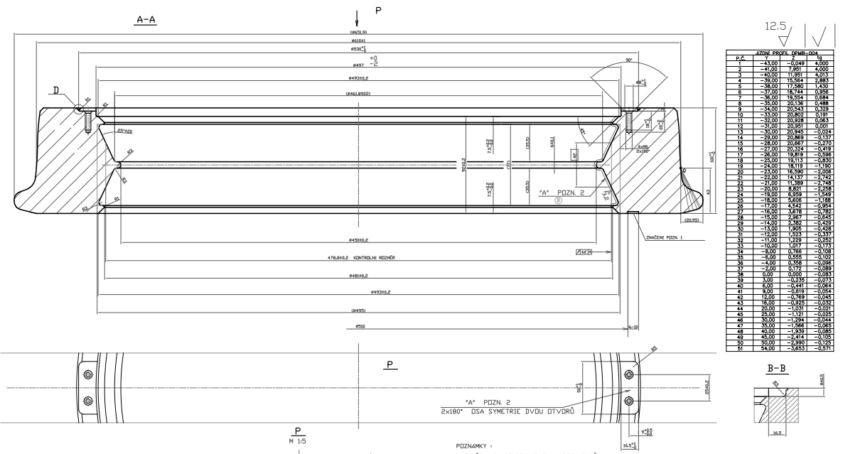
Ad 2) Zadavatel poskytuje orientační část z výkresu, kde je provedení opracované obruče vyobrazeno.  Plnohodnotné výkresy pro kola průměrů 610mm a 700mm budou poskytnuty  vybranému dodavateli.

Ad 3) Zadavatel požadovanou dokumentaci nemá k dispozici a upozorňuje, že původní karuselový obráběcí stroj je svým původním použitím jednoúčelový a tudíž PLC bude pravděpodobně uzpůsobeno pouze pro původní aplikaci – je riziko, že PLC bude nutné modernizovat, případně obnovit (dle návrhu dodavatel). 


S pozdravem


Lenka Mohelská
Právní a zakázkový odbor
DPMB, a.s.