Stav: Ukončená

Serverový čas: 30.10.2025 07:03

Karta obstarávania #ID 5585
SOŠ OaS Nová Baňa-rekonštrukcia chaty Tajch-vypracovanie projektovej dokumentácie

Informácie

ID zákazky
37136
Názov predmetu
SOŠ OaS Nová Baňa-rekonštrukcia chaty Tajch-vypracovanie projektovej dokumentácie
Číslo spisu
ID 5585
Druh postupu
Zákazka s nízkou hodnotou
Typ šablóny
Zákazka s nízkou hodnotou
Druh obstarávania
Služby
Výsledok obstarávania
Uzavretie jednorázovej zmluvy
Predpokladaná hodnota
35 585,00 EUR
Hlavný CPV
71240000-2 - Architektonické, inžinierske a plánovacie služby
Doplňujúci CPV
71320000-7 - Inžinierske projektovanie
71242000-6 - Príprava projektov a návrhov, odhad nákladov
71250000-5 - Architektonické a inžinierske služby a dozor
71300000-1 - Inžinierske služby
Obstarávanie sa delí na časti
Nie
Elektronická aukcia
Nie
Centrálne obstarávanie
Nie
NUTS
SK - Slovenská republika
Stručný opis

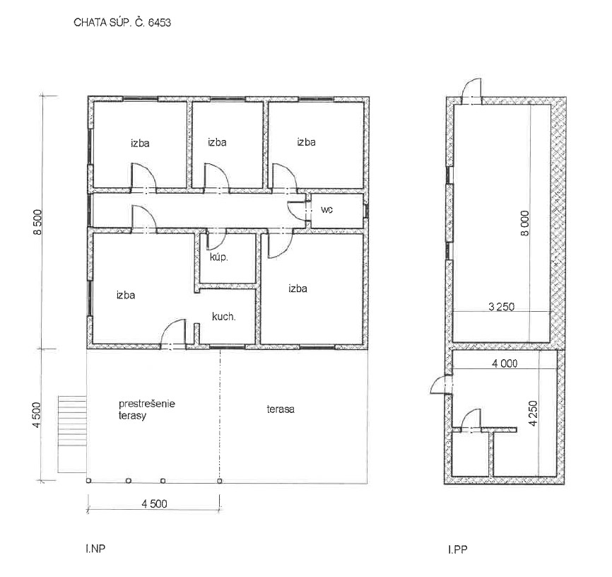
Predmet zákazky sa týka objektu rekreačnej chaty, súpisné číslo 6453, orientačné číslo 42 na pozemku KNC parc. Č. 1814 v k.ú. Nová Baňa, ktorý bol daný do užívania v roku 1964.
Objekt momentálne nie je celoročne využívaný a rekonštrukciou sa má dosiahnuť možnosť celoročného využívania objektu na ubytovanie, konanie prednášok, workshopov, kongresov, pre účely vyučovania a poskytovania vzdelávacích seminárov.

Podrobnejší opis poskytnutia služby je uvedený v prílohe č. 2 tejto výzvy – Opis predmetu zákazky.

Kritérium na vyhodnotenie ponúk
Najnižšia cena
Na vyhodnotenie je určená cena

vrátane DPH

Termíny

Lehota na predkladanie ponúk
03.02.2023 09:00:00

Verejný obstarávateľ

Názov organizácie
Stredná odborná škola obchodu a služieb (Nová Baňa)
Adresa
Osvety 17
Nová Baňa
968 01, Slovenská republika
Procesný garant
Mgr. Marta Juríčková
marta.jurickova@bbsk.sk
+421 940608017

Dokumenty